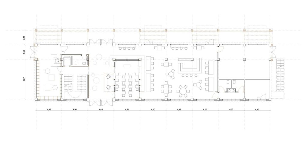
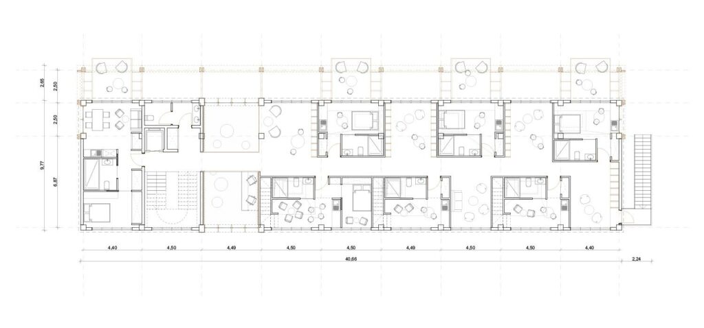
Situé à proximité immédiate des zones dynamiques du village – gare, village du Père Noël et centre-ville – le site de l’ancienne école possède un fort potentiel stratégique. Sa superficie généreuse permet d’accueillir des programmes touristiques variés et de développer un projet à grande échelle. Depuis le centre du village, au cœur des montagnes, émerge la So-Bun Forest, une forêt animée, respectueuse du patrimoine et de l’histoire du lieu, mais résolument tournée vers l’avenir. L’école, élément central du site, incarne la mémoire du lieu et l’architecture modulaire familière à des générations d’étudiants coréens. Symbole d’éducation, de transmission et de partage, elle est conservée et intégrée au projet.
Sa trame structurelle se déploie sur l’ensemble du terrain, formant une grille virtuelle qui organise les entités architecturales et paysagères. De nombreuses essences locales y sont semées, reconstituant un écrin végétal au cœur des montagnes.
Autour d’une serre vitrée, un potager s’étend sous les arbres : source d’approvisionnement pour le restaurant et support pédagogique, il fait de la So-Bun Forest un lieu comestible et vivant. Fondé sur la division et la recomposition, le concept de So-Bun tisse des liens entre public et privé, intérieur et extérieur, architecture et paysage.
programme
maitrise d’ouvrage
maîtrise d’œuvre
mission
localisation
surface
budget
année
Réhabilitation / équipements touristiques / hotellerie / écolodges
Région de Bong-Hwa
atelier metaa / Gonyu architects / Lim Da Jeong
concours
BongHwa-Gun, Corée du Sud
11 000 m²
5 000 000 € (6 924 000 000 W )
2022











